1906 Dobbins Avenue
$199,999
Property Information
| Price $199,999 | MLS # 20298977 | Lot Size Acres | ||
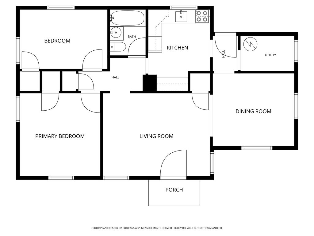
| Bedrooms 2 | Bath (Full / Half) 1 / | Square Footage | ||
| Age | Subd. | Garage Capacity |
Listing Company: Adly Group Realty
Listing Agent: Casey Shugart
Welcome to this beautifully updated traditional-style home offering 2 bedrooms and 1 bath, perfectly situated on a large, private lot that provides both peace and plenty of space to enjoy. Blending classic charm with modern updates, this home is move-in ready and full of character. Inside, you’ll find refinished hardwood floors that add warmth and elegance, complemented by durable LVP flooring in select areas for added functionality. The entire interior has been freshly painted, creating a bright and inviting atmosphere throughout. A formal dining room provides the perfect setting for gatherings, while the spacious laundry room offers convenience and additional storage. The updated kitchen features butcher block countertops, a new stove and dishwasher, and new light fixtures that enhance the home’s fresh, modern feel. Additional improvements include updated ductwork, a 2019 HVAC system, a 2023 water heater, some updated plumbing, and a moisture barrier installed for added peace of mind. Step outside to enjoy the freshly painted exterior, new exterior doors, and expansive yard, ideal for outdoor living, gardening, or simply relaxing in your own private retreat. A standout feature of the property is the two-story barn, now equipped with new windows, offering endless possibilities for storage, a workshop, or hobby space. Conveniently located near shopping and town, this home also benefits from its proximity to Linley Park, which was recently updated with a new playground, walking trails and space for outdoor activities, adding even more appeal to the surrounding area. This charming home combines timeless style with thoughtful updates, making it a wonderful opportunity for comfortable living with room to grow.
































