22 Kelvyn Street
$369,900
Property Information
| Price $369,900 | MLS # 20298890 | Lot Size Acres | ||
| Bedrooms 3 | Bath (Full / Half) 2 / 1 | Square Footage | ||
| Age | Subd. Oneal Village | Garage Capacity 2 |
Listing Company: Century 21 Blackwell & Co - Boiling Springs
Listing Agent: Preston Inglee
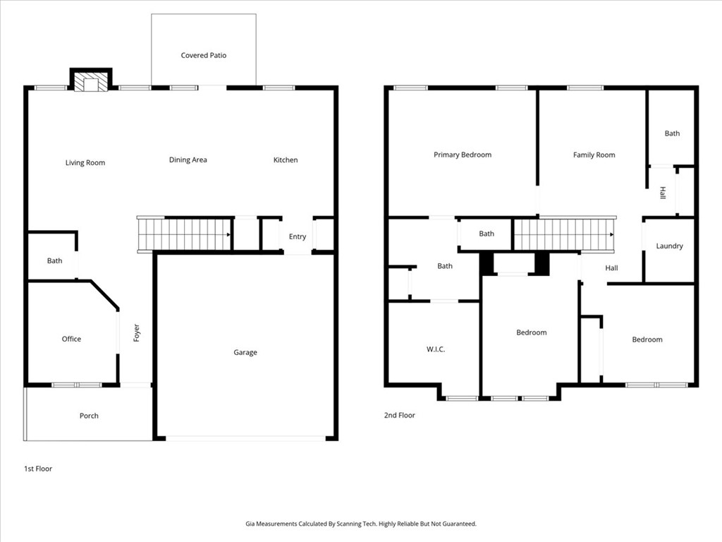
Welcome to this beautifully maintained Craftsman-style home located in the highly desirable O’Neal Village community in Greer. Built in 2014, this two-story residence features approximately 1,900 square feet, 3 bedrooms, and 2.5 bathrooms with a thoughtfully designed layout for modern living. The main level features beautiful hardwood floors, an open-concept floor plan with a spacious living area, gas log fireplace, and seamless flow into the kitchen and dining space. The kitchen is equipped with granite countertops, ample cabinetry, and functional workspace. Also on the main floor is a dedicated office, ideal for remote work, study, or a quiet retreat. Upstairs, the primary suite includes a large walk-in closet and private bath. Two additional bedrooms, a full bathroom, and a versatile flex room provide plenty of space for a second living area, playroom, or media space. Laundry is conveniently located on the second level. Exterior features include a welcoming front porch, patio area, and a fenced backyard suited for outdoor enjoyment. The attached two-car garage adds convenience and storage. Situated in O’Neal Village, residents enjoy access to community amenities including a pool, green spaces, and walkable areas with nearby shops and gathering spots. Conveniently located near schools, shopping, and major roadways, this home combines comfort, function, and community living in one of Greer’s most sought-after neighborhoods.






























