405 Shafer Court
$459,000
Property Information
| Price $459,000 | MLS # 20298574 | Lot Size Acres | ||
| Bedrooms 4 | Bath (Full / Half) 2 / 1 | Square Footage | ||
| Age | Subd. Other | Garage Capacity 2 |
Listing Company: Century 21 Blackwell & Co - Boiling Springs
Listing Agent: Preston Inglee
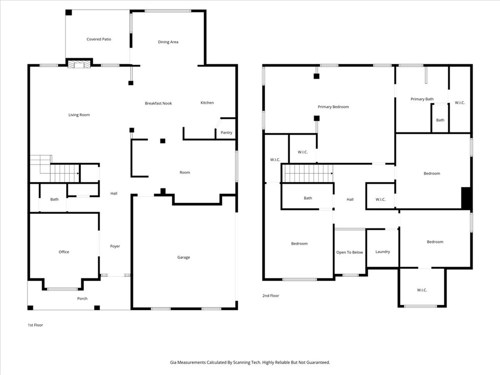
Located in the desirable Pointe at Rock Springs community on Spartanburg’s west side, this spacious Craftsman-style home features 4 bedrooms, 2.5 bathrooms, and approximately 3,495 square feet of living space on a corner lot. Built in 2014, the home includes an open floor plan designed for comfortable everyday living and entertaining. The main level includes a bright sunroom or space and a large living room with a gas log fireplace. The kitchen is equipped with granite countertops, stainless steel appliances, and a walk-in pantry along with a breakfast area for casual dining. Upstairs, the primary suite features a sitting area or office space, walk-in closet, double vanity, ceramic tile flooring, garden tub, and separate shower. Three additional bedrooms with walk-in closets are located on the second level along with a walk-in laundry room. Outdoor spaces include a covered front porch and two covered patio areas overlooking the fenced backyard, creating multiple areas for relaxing or gathering with guests. The property sits on a level corner lot with underground utilities and includes a two-car attached garage with a paved driveway. Convenient westside location with quick access to shopping, dining, and major highways, while also being near the Wadsworth Trail system with more than three miles of walking paths.






























