511 Nellie Road
$449,990
Property Information
| Price $449,990 | MLS # 20298535 | Lot Size Acres | ||
| Bedrooms 3 | Bath (Full / Half) 2 / | Square Footage | ||
| Age | Subd. Windsor Estates | Garage Capacity 2 |
Listing Company: Ryan Homes
Listing Agent: Joyce "Joie" Day
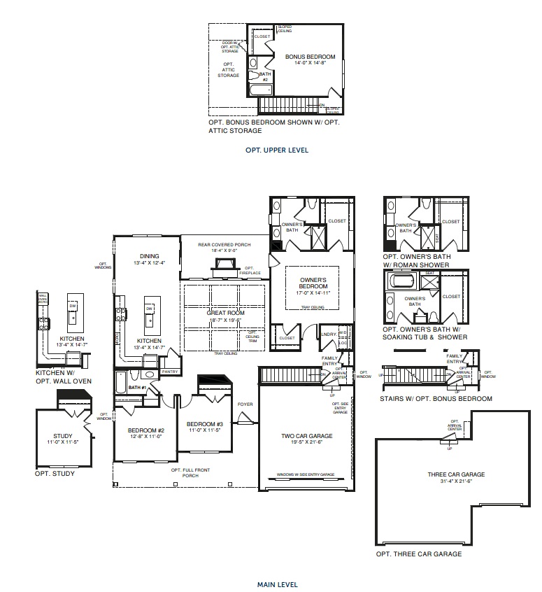
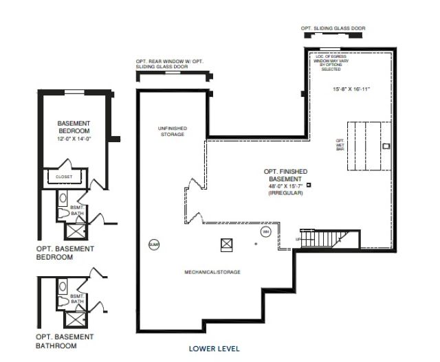
The Cumberland single-family home features so much space and style. A cozy covered entry says ‘welcome home' to all who enter. Through the foyer, the spacious great room is waiting to host the next family game night or gathering. The floor plan flows seamlessly into the gourmet kitchen, dining area and covered rear porch. When peace and quiet beckon, 3 bedrooms are steps away. The luxurious, main-level owner's suite features 2 walk-in closets and access to the rear porch. Add an optional full bonus suite upstairs or a finished basement below for more living space. You'll love The Cumberland. Welcome to Windsor Estates. Where the foothills meet the fairway—spacious half acre homesites with golf course views, finished basement options, and lakes just minutes away Community Features: -Beautiful 1 and 2-Story homes backing to the Windsor at Walhalla Golf Course -Half acre to three-quarter acre homesites with options for a 3-car garage and/or finished basement! -Golf Course or Serene Wooded homesites – choose your perfect backdrop -Designer interiors featuring choice of kitchen countertops, cabinets, back splash, LVP flooring and more! -First floor owner’s suites or first floor bedroom options are available. The Area: Nestled in the foothills of the Blue Ridge Mountains, Walhalla, South Carolina, is a charming small town. Known for its scenic beauty and welcoming community, Walhalla is part of Oconee County and offers a peaceful setting surrounded by forests, rivers, and mountain views. Its historic downtown features local shops, restaurants and distilleries making it a delightful place to explore or call home.



