723 Holliday Dam Road
$600,000
Property Information
| Price $600,000 | MLS # 20297999 | Lot Size Acres | ||
| Bedrooms 4 | Bath (Full / Half) 2 / 1 | Square Footage | ||
| Age | Subd. | Garage Capacity 4 |
Listing Company: RE/MAX Executive/Greenville
Listing Agent: Joey McCormick
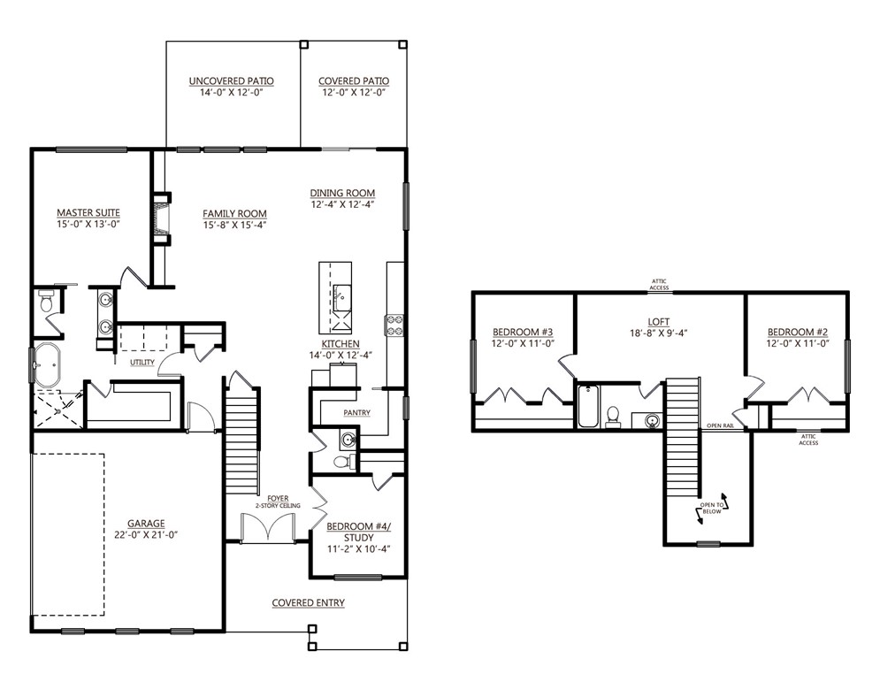
ASK US ABOUT OUR BUILDER FLEX CASH. WE CAN BUY YOUR INTEREST RATE DOWN AND/OR COVER YOUR CLOSING COSTS! Nestled on a sprawling 2.16-acre lot, this contemporary farmhouse radiates timeless appeal with a seamless fusion of rustic allure and modern sophistication. The exterior captivates with a classic board-and-batten facade, complemented by a cozy front porch supported by sturdy Cyprus beams, inviting you to unwind in shaded comfort. A sleek, 8-foot front door opens into a grand foyer, where a 2-story foyer lined with tongue-and-groove planking creates a sense of airy elegance that flows into the open-concept living and dining areas. Rich, wide-plank LVP flooring stretches across the main living spaces, offering warmth and durability with a refined, natural aesthetic. The heart of the home is the expansive, window-filled great room, where a dramatic shiplap-clad fireplace stretches from floor to ceiling, joined with timber floating shelves and custom built-ins, serving as a cozy yet commanding focal point. Adjacent, the gourmet kitchen is designed for both function and flair, featuring honed quartz countertops, a generous farmhouse sink, and a spacious island. Custom cabinetry, accented by gold hardware, pairs beautifully with a herringbone-patterned tile backsplash, while top-of-the-line stainless steel appliances, including a built-in oven, cater to culinary enthusiasts. A hidden walk-in pantry with built-in shelving and a coffee station adds practicality and charm, perfect for hosting gatherings or quiet mornings. The primary suite, thoughtfully positioned for seclusion at the home’s rear, is a sanctuary of luxury. Its ensuite bath boasts dual vanities with quartz tops, a sleek soaking tub, and a spacious walk-in shower with multiple shower heads and intricate tilework. A private water closet and an oversized closet with custom organizers enhance convenience, while a discreet sliding pocket door connects directly to the laundry room equipped with additional cabinetry for functional storage. The main level also includes a fourth bedroom, a versatile space with ample natural light and wide-plank LVP flooring, perfect as a guest suite or home office, complete with a spacious closet . The home’s upstairs layout offers a loft and two additional bedrooms, each with ample natural light and built-in closet shelving, sharing a stylish bathroom featuring a single vanity, tile flooring, and a tile-surround tub/shower. Outside, a 12x14 Trex rear deck and a 12x12 covered/screened porch provide an ideal setting for outdoor entertaining or serene evenings under the stars. The property includes an attached 22x21 garage and a detached, fully finished 20x20 workshop/garage, ideal for projects or extra parking. This modern farmhouse harmonizes rustic warmth with contemporary finesse, offering a tranquil retreat. * Home has been preappoved by DES ( DHEC) for a pool * Builder offers closing costs for using preferred lender and closing attorney * This home is located in an USDA Eligible area






































