401 Southway Street
$575,000
Property Information
| Price $575,000 | MLS # 20296760 | Lot Size Acres | ||
| Bedrooms 3 | Bath (Full / Half) 2 / 1 | Square Footage | ||
| Age | Subd. Wyatt Ag | Garage Capacity 2 |
Listing Company: Coldwell Banker Caine/Williams
Listing Agent: Lucy Aughtry
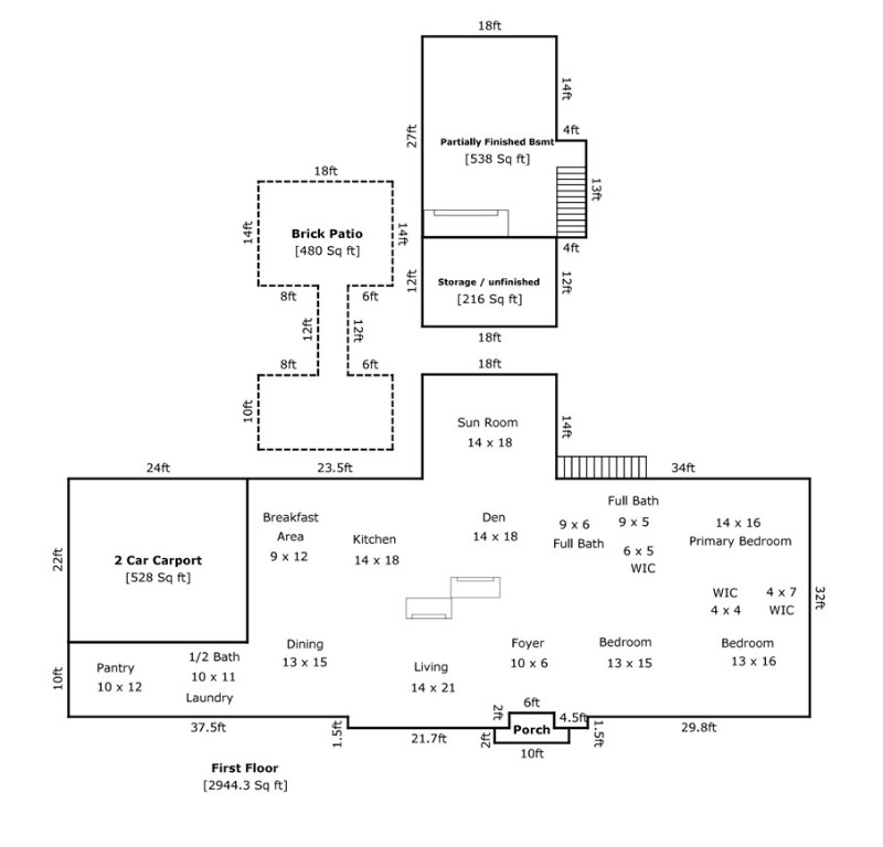
Completely renovated traditional brick ranch, stately positioned on a desirable corner lot just minutes from Downtown Easley. This home exemplifies refined one-level living, offering both elegance and functionality with formal dining and living rooms, a sunroom, den, breakfast area, and a slate foyer. The residence features three bedrooms and two-and-a-half baths and has been thoughtfully updated inside and out. Major improvements include all-new electrical and plumbing, a new roof, HVAC system, windows, and a tankless water heater, providing peace of mind and modern efficiency. Elevated selections throughout showcase the home’s timeless appeal, including real hardwood floors, a neutral color palette, stylish wallpaper, curated light fixtures, custom built-in bookcases, and beautifully tiled bathrooms. Additional highlights include a walk-up floored attic and a 538 square foot partially finished basement with fireplace, offering endless possibilities for additional living, recreation, or storage space. Set on a spacious .89-acre lot, the outdoor setting features a brick patio, circular driveway, mature trees, and ample room for privacy and future transformation. A two-car carport with heated and cooled storage completes the home’s thoughtful design and everyday convenience. Ideally located just minutes from Highway 123, shopping, dining, and Downtown Easley, with easy access to Clemson University and Downtown Greenville, this home offers a rare blend of traditional luxury, extensive updates, and prime location. **Total square footage of the home is approximately 3482. Finished first floor is 2944 square feet and partially finished basement is 538 square feet.**



























