303 Loblolly Drive
$315,000
Property Information
| Price $315,000 | MLS # 20296642 | Lot Size Acres | ||
| Bedrooms 4 | Bath (Full / Half) 3 / | Square Footage | ||
| Age | Subd. Loblolly Pines | Garage Capacity 3 |
Listing Company: Keller Williams DRIVE
Listing Agent: Diane Blackwell
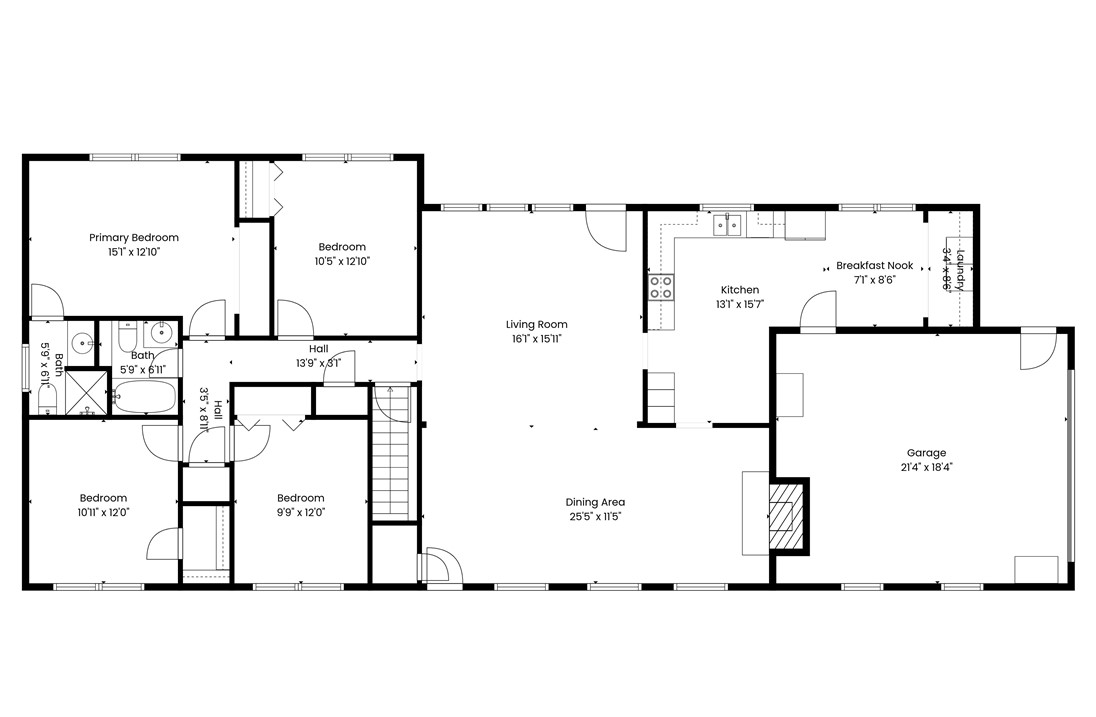
Looking for a 4-bed home in Loblolly Pines with a finished basement, fenced yard, and extra garage storage? This brick ranch provides versatile living in a well-established neighborhood with no HOA. The main level includes four bedrooms, two full baths, a spacious living room filled with natural light, formal dining, and a kitchen equipped with stainless steel appliances. The home features a clean, neutral interior palette throughout. The finished basement offers even more space with a large media or great room, a full bathroom, and a flexible bonus room perfect for a home office, gym, or guest space. Enjoy outdoor living in the fully fenced backyard with plenty of room to gather or unwind. There is an attached two-car garage and a separate outbuilding with electricity adds additional garage or workshop functionality. Located in Loblolly Pines, this home sits on a spacious lot with sidewalks and quiet streets, just minutes from Centerville Road and Hwy 28 Bypass. Schedule your showing today.


































