110 Madison Court
$379,900
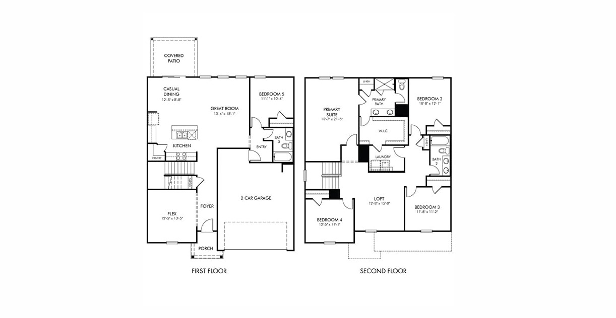
Property Information
| Price $379,900 | MLS # 20296119 | Lot Size Acres | ||
| Bedrooms 5 | Bath (Full / Half) 3 / | Square Footage | ||
| Age | Subd. The Farm At Wells Creek | Garage Capacity 2 |
Listing Company: MTH SC Realty, LLC
Listing Agent: Kelly Jo Hard
Brand new, energy-efficient home available by Feb 2026! Sip your coffee from the Chatham’s charming back patio. The impressive primary suite boasts dual sinks and a large walk-in closet. White cabinet with white quartz countertops, EVP flooring, and carpet in our Radiant Package. The Farm at Wells Creek offers energy-efficient, ranch and two-story homes. Located off I-385, homeowners will enjoy easy access to entertainment and dining. Floorplans vary from three to five bedrooms and include spacious open-concept great rooms and luxurious primary suites. Homeowners will enjoy premier amenities including a pool and cabana, pickleball courts, a playground, and more. Schedule an appointment today. Each of our homes is built with innovative, energy-efficient features designed to help you enjoy more savings, better health, real comfort and peace of mind.


