306 Juniper Valley Circle
$309,990
Property Information
| Price $309,990 | MLS # 20295702 | Lot Size Acres | ||
| Bedrooms 4 | Bath (Full / Half) 2 / 1 | Square Footage | ||
| Age | Subd. Evergreen Hills - Piedmont | Garage Capacity 2 |
Listing Company: DFH Realty Georgia, LLC
Listing Agent: Marie Zoltun
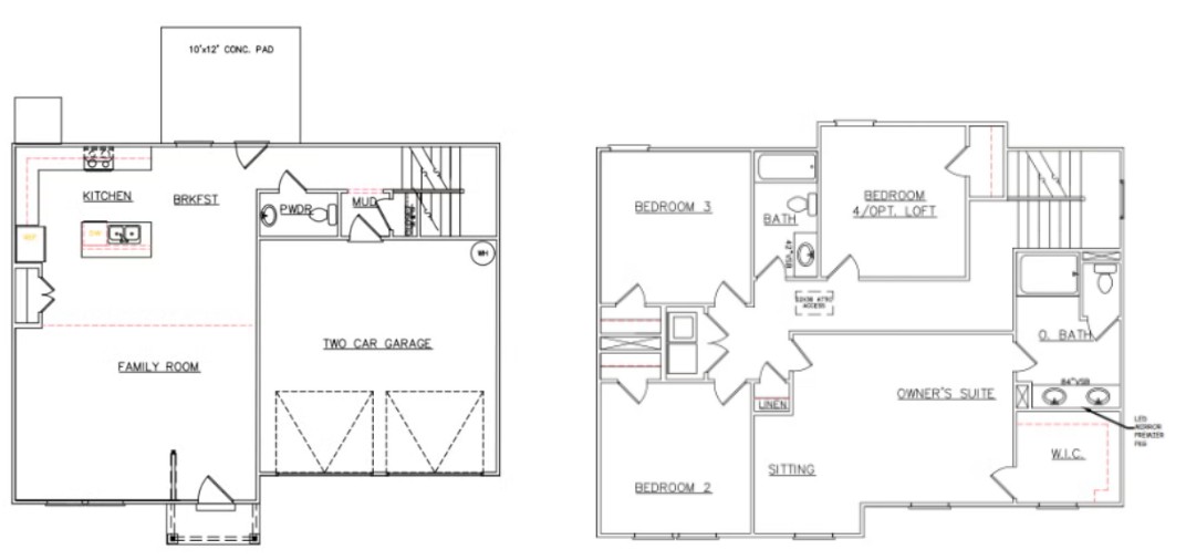
The Russell is its open concept, is one of Dream Finders Homes most sought-after plans and the last one being built in the subdivision. Downstairs features a large family room open to the kitchen. The thoughtfully arranged kitchen offers loads of cabinet and granite counter space, walk-in pantry, stainless steel sink with pull-down sprayer faucet, a large island. The owner's suite has a walk-in closet and a sitting room, full bath with double sinks, large separate tiled shower with built-in bench, and lvp flooring. Granite counters in all bathrooms. Enjoy your 10x12 covered patio overlooking your backyard. 1-yr Builder's & 10-yr Structural New Home Warranty. USDA 100% financing available.




