619 Silver Fir Street
$350,990
Property Information
| Price $350,990 | MLS # 20295566 | Lot Size Acres | ||
| Bedrooms 5 | Bath (Full / Half) 3 / | Square Footage | ||
| Age | Subd. Evergreen Hills - Piedmont | Garage Capacity 2 |
Listing Company: DFH Realty Georgia, LLC
Listing Agent: Marie Zoltun
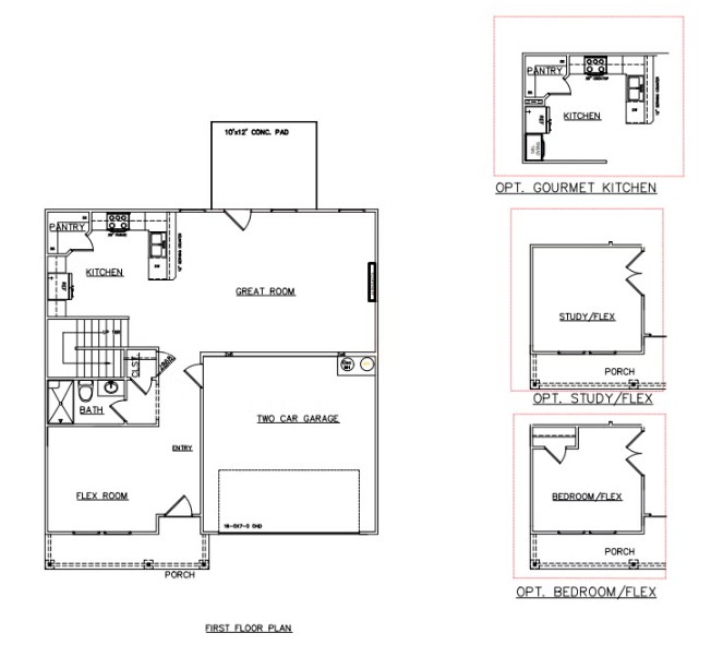
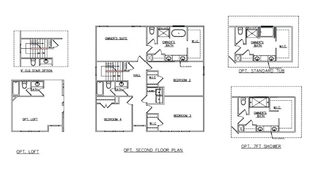
The Jodeco is its open concept, is one of Dream Finders Homes most sought-after plans. Downstairs features a flex room that can be used as an office/study or 5th bedroom. The thoughtfully arranged kitchen offers loads of cabinet and granite counter space, walk-in pantry, stainless steel sink with pull-down sprayer faucet, a large island. The owner's suite has a walk-in closet, full bath with double sinks, large separate tiled shower with built-in bench, and LVP flooring. Granite counters in all bathrooms. Enjoy your 10x12 covered patio overlooking your backyard. 1-yrBuilder's & 8-yr Structural New Home Warranty. USDA 100% financing available.





