2313 Poplar Lane
$235,000
Property Information
| Price $235,000 | MLS # 20295110 | Lot Size Acres | ||
| Bedrooms 3 | Bath (Full / Half) 1 / 1 | Square Footage | ||
| Age | Subd. Bellview Estates | Garage Capacity 2 |
Listing Company: eXp Realty - Clever People
Listing Agent: The Clever People
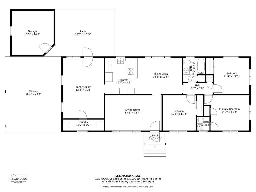
If turnkey perfection is your aim, come see this all brick home on 2313 Poplar Lane! Pristine, timeless and beautifully maintained, this single story home offers perfectly restored finishes from this home's birth year and pairs them with tasteful upgrades. Tucked into a quiet, established Anderson neighborhood, you'll step inside to find a light-filled den that flows into the oversized casual dining area and kitchen. Just off the kitchen, you'll find the generously sized living room with access to the laundry room. There's also access to the back patio that overlooks the manicured and fenced backyard. The primary suite is tucked privately at the opposite end of the home and offers a private half bathroom. Two additional bedrooms and an updated full bathroom are also located on this side of the home. The oversized carport and workshop/storage room allow you to easily extend activities outdoors. Located just minutes from major shopping, schools, a local produce stand, restaurants, Linley Park and Downtown Anderson, this home offers ideal convenience to so many points of interest!


































