1007 Tuscany Drive
$468,900
Property Information
| Price $468,900 | MLS # 20294620 | Lot Size Acres | ||
| Bedrooms 3 | Bath (Full / Half) 3 / | Square Footage | ||
| Age | Subd. Tuscany | Garage Capacity 2 |
Listing Company: Monaghan Co Real Estate
Listing Agent: Julie Ducworth
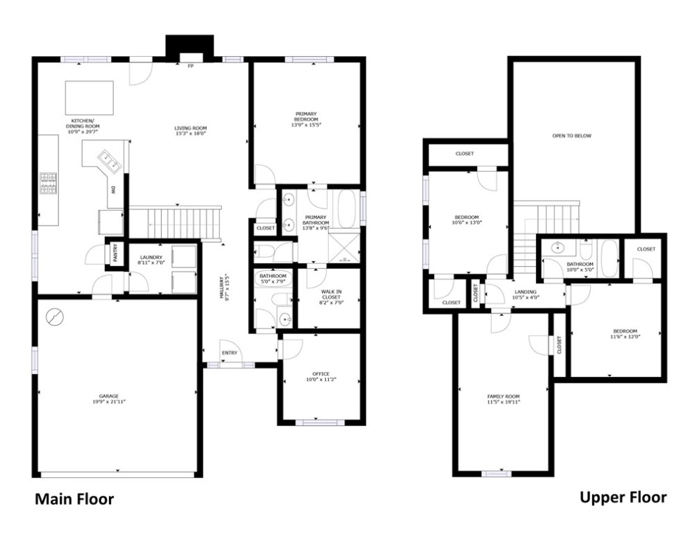
**Interested buyers may be able to take advantage of an assumable mortgage at 4.75% if purchasing the property as a primary residence.** Luxury, low-maintenance living in one of Anderson's premier neighborhoods. Welcome to 1007 Tuscany Drive. The brick home offers upscale living and entertainment space in an open, well-designed floor plan. Features include: 3 bedrooms with 3 full bathrooms; chef’s kitchen with granite countertops; hardwood floors on the main level; tiled bathrooms; 2-car garage; bonus room; office/study; spacious laundry room; gas fireplace; fenced backyard; and covered and uncovered outdoor living space. The primary bedroom and ensuite are located on the main level and highlighted by the tray ceiling in the bedroom, a large walk-in closet, and separate tub & shower. Built in 2016 with finishes selected in collaboration with a local designer, upgrades include elevated lighting & hardware, wainscoting on the main level, professional induction range, extended patio, and bull-nosed corners throughout. Additionally, the home is equipped with smart home features, a water leak detection system, and a generator inlet box. Tuscany boasts a recently renovated clubhouse, pool, and lazy river plus two ponds stocked for fishing. The community’s peaceful setting — five minutes from everyday necessities and convenient to I-85 — make this one of Anderson’s more desirable neighborhoods. Book your showing today! All offers welcome.





































