1588 Switchback Circle
$271,900
Property Information
| Price $271,900 | MLS # 20294541 | Lot Size Acres | ||
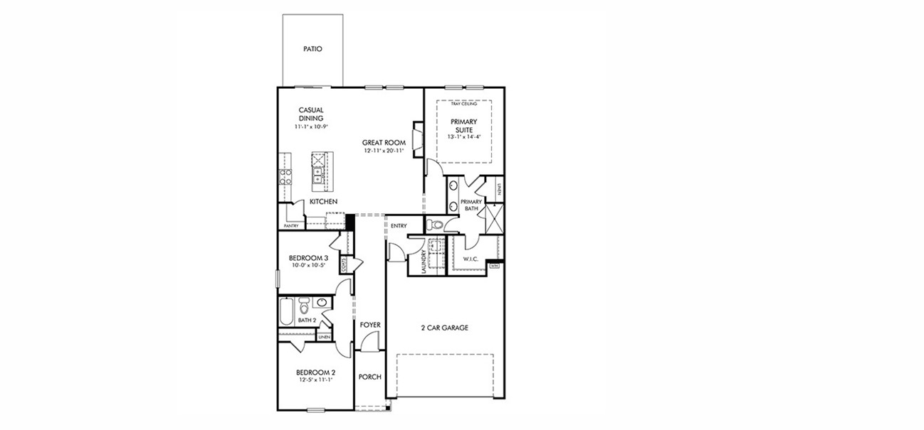
| Bedrooms 3 | Bath (Full / Half) 2 / | Square Footage | ||
| Age | Subd. Collier Ridge | Garage Capacity 2 |
Listing Company: MTH SC Realty, LLC
Listing Agent: Kelly Jo Hard
Brand new, energy-efficient home available by Dec 2025! Just down the hall from the generous secondary bedrooms, unwind in the primary suite, complete with dual sinks and an impressive walk-in closet. Pebble cabinets with white quartz countertops, EVP flooring, and carpet in our Charm Package. Located in the Byrnes School District, Collier Ridge is a master-planned community centered around smart choices and better living with amenities like a pool and cabana, dog park, and more, creating a community around you. Simplify your commute with easy access to I-26 and I-85. Groundbreaking energy efficiency is built seamlessly into every home in this community so you can spend less on utility bills and more on the things that matter most. * Each of our homes is built with innovative, energy-efficient features designed to help you enjoy more savings, better health, real comfort and peace of mind.
































