406 Granby Trail
$354,900
Property Information
| Price $354,900 | MLS # 20293575 | Lot Size Acres | ||
| Bedrooms 4 | Bath (Full / Half) 2 / 1 | Square Footage | ||
| Age | Subd. Maxwell Commons | Garage Capacity 2 |
Listing Company: MTH SC Realty, LLC
Listing Agent: Kelly Jo Hard
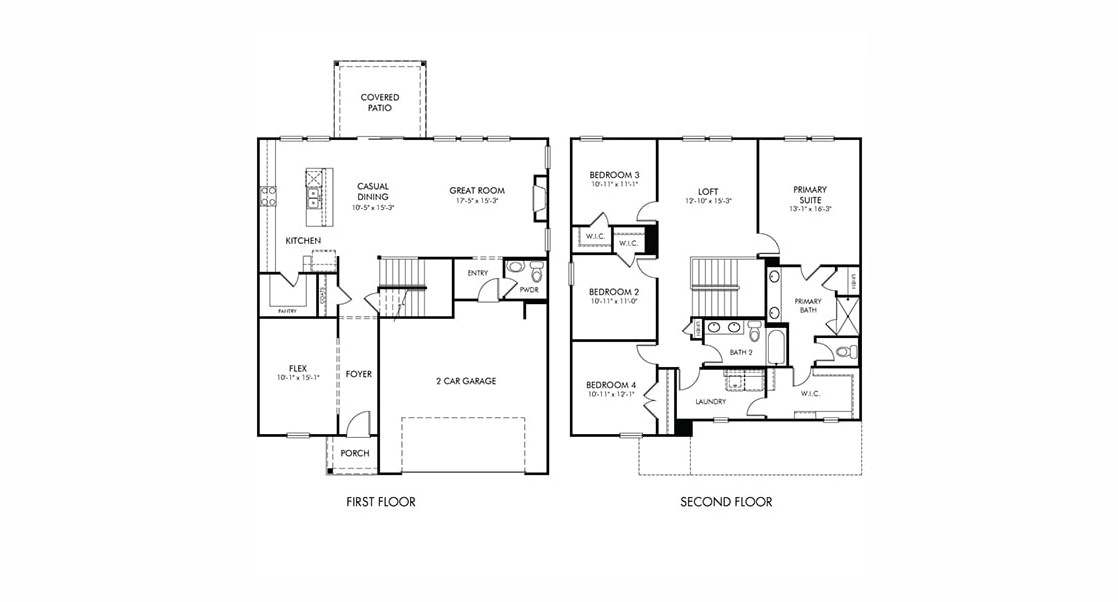
Brand new, energy-efficient home available by Nov 2025! Outfit the Dakota's main-level flex space as a home office and skip your commute. In the kitchen, the island overlooks the open living space. Upstairs, the loft separates the secondary bedrooms from the primary suite. Now selling in Easley. Maxwell Commons will feature fabulous energy-efficient floorplans with open designs, fireplaces, and flex spaces to suit your lifestyle. Enjoy shopping and dining in downtown Easley or spend the day outdoors at nearby parks such as Nalley Brown Nature Park. With clear pricing and an easier buying process, Maxwell Commons offers a simple, more affordable way into the home of your dreams. Contact a Sales Counselor today. Each of our homes is built with innovative, energy-efficient features designed to help you enjoy more savings, better health, real comfort and peace of mind.






































