2437 Arlington Heights

$426,900

Property Information

Property Details
Price $426,900 MLS # 20293112 Lot Size Acres
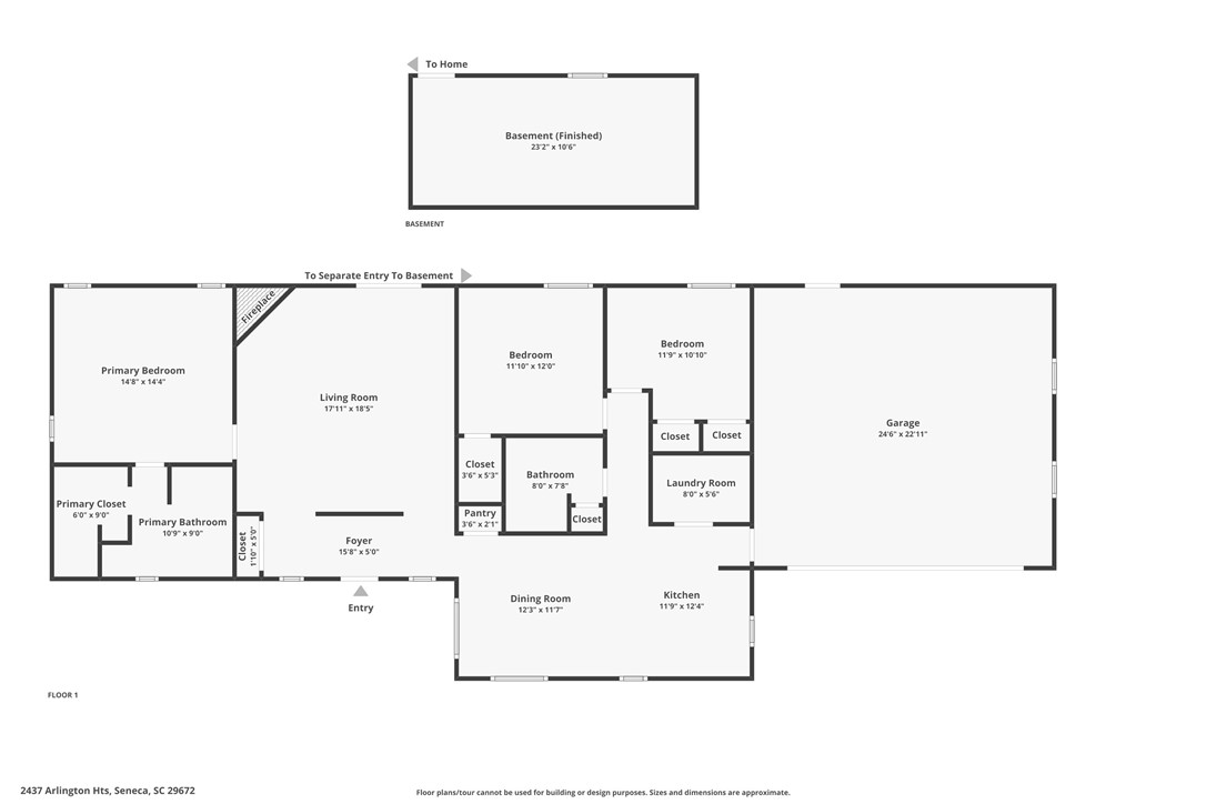
Bedrooms 3 Bath (Full / Half) 2 / Square Footage
Age Subd. Bayshore Garage Capacity 2

Listing Company: Agent Group Realty - Greenville
Listing Agent: Robert Whitesides

Welcome to 2437 Arlington Heights, a meticulously maintained home in the sought-after Bayshore community on Lake Hartwell. Built in 1992, this residence has been thoughtfully cared for and refreshed to create a true move-in ready experience. Nestled on an interior lot, the home features 3 bedrooms, 2 bathrooms, and more than 1,550 square feet on the main level, plus nearly 300 finished square feet below grade accessible from outside. The attention to detail is unmatched. A brand-new kitchen with cabinets, countertops, and KitchenAid appliances (never used) sets the stage, complemented by fresh paint on every interior wall and updated fixtures throughout. Major updates and care include a pre-sale inspection, HVAC service, septic tank pumping, new gutters, irrigation valves, window shades and screens, storm door, LED lighting, and more. Even small touches — from reseeded lawns to refurbished garage floors and new receptacle covers — reflect the seller’s goal of creating a maintenance-free environment. Outdoor living is just as impressive, with multiple decks, an elevated hot tub gazebo, and landscaped grounds. A polished two-car garage/workshop, ample storage, and finished bonus space below grade provide flexibility. Bayshore residents enjoy proximity to both Lake Hartwell and Lake Keowee boat landings, just minutes from Clemson University and downtown Seneca. This property combines nostalgic charm with modern updates, making it a rare opportunity in one of the Upstate’s most convenient lake communities.

Contact Michael to Learn More

To learn more about this property please give Michael a call at (864) 979-5357, or use the contact form below.