102 Rockcrest Road
$400,000
Property Information
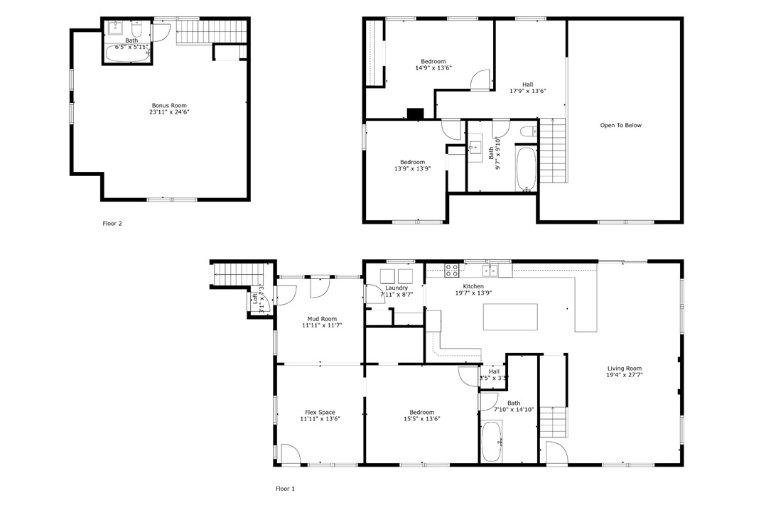
Property Details
| Price $400,000 | MLS # 20292119 | Lot Size Acres | ||
| Bedrooms 3 | Bath (Full / Half) 3 / 1 | Square Footage | ||
| Age | Subd. | Garage Capacity 3 |
Listing Company: Bluefield Realty Group (23578)
Listing Agent: Britni Ream



























