80 Rosemond Road
$565,000
Property Information
| Price $565,000 | MLS # 20292095 | Lot Size Acres | ||
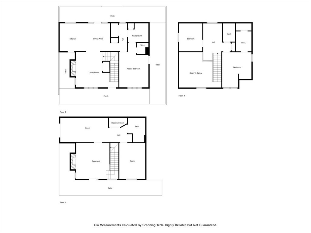
| Bedrooms 3 | Bath (Full / Half) 3 / | Square Footage | ||
| Age | Subd. | Garage Capacity |
Listing Company: Century 21 Blackwell & Co - Boiling Springs
Listing Agent: Preston Inglee
Quietly nestled in the Blue Ridge mountains just past Caesars Head State Park and a stone's throw from the NC border sits this incredible mountain home - only 15 minutes from Brevard NC, 16 minutes to Eagles Nest lake and Thunder Lake. Enjoy complete privacy, clean mountain water, and the soothing sounds of nature. This is truly a mountain lifestyle just a short bike ride to the state park or mountain stream. Impressive 2-story river rock fireplace that is seen both inside and outside the home with a flue in place for a wood burning stove if so desired. Wrap-around porch overlooking your 2-acre mountain retreat and the potential to create astonishing mountain views. A 3-story custom built home, with a fully finished basement, bedrooms on all 3 floors (including an Owners Suite on the main floor!) Creative hidden hideaways! Hardwood Floors! Dual-Tone Andersen Fiberex Windows! Water Filtration System! Highly efficient HVAC design and DOUBLE foam insulated walls throughout! The walk-in basement level is complete with an extra thick "bear door;" fully wired and plumbed for an additional kitchen. Create your own lower level living space with an added bedroom, full bath and living room complete with the gorgeous river rock fireplace as your centerpiece! Upstairs on the main level you are greeted by a beautiful cathedral ceiling, a sprawling floor- to-ceiling river rock fireplace, oil-rubbed bronze fixtures and lights and an inviting classic country kitchen space with beautiful wood cabinetry, decorative glass doors and convenient over-the-stove pot filling faucet!! . Follow the open stairway to the 2nd story where an additional bedroom, bathroom and office (possibly a 4th bedroom,) and loft finish off the grand feeling of mountain home living. If privacy, breathtaking mountain air and sweet clean water are calling your name then take the winding roads up to this one of a kind retreat and make it your home today!
































