124 Wiley Road
$285,000
Property Information
| Price $285,000 | MLS # 20292045 | Lot Size Acres | ||
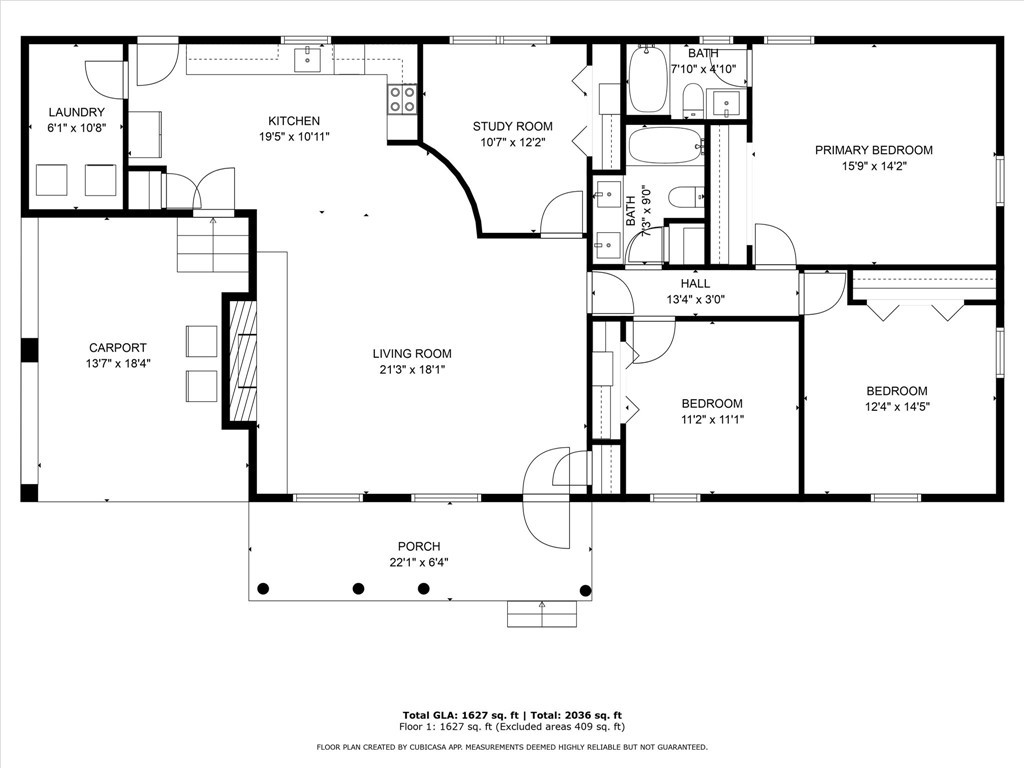
| Bedrooms 4 | Bath (Full / Half) 2 / | Square Footage | ||
| Age | Subd. Other | Garage Capacity 1 |
Listing Company: Western Upstate Keller William
Listing Agent: Tyler Durham
Discover the perfect blend of comfort, space, and seclusion in this beautifully renovated 4-bedroom, 2-bath brick ranch, nestled on nearly 6 picturesque acres with a shared stocked pond and mature, tree-lined privacy. Step inside to a warm, inviting interior featuring stylish LVP flooring, porcelain tile flooring in both bathrooms, and sleek granite countertops in the kitchen and hall bath. The hall bath boasts a shower and tub combo with ceramic tiling and double vanity. The spacious primary suite offers a serene escape with its ensuite bath and solid surface vanity. Cozy up by the fully functional wood-burning fireplace, professionally cleaned and inspected in 2025. Enjoy peace of mind with brand new appliances, a new HVAC system, new well system and updated vinyl, tilt-out windows. The separate walk-in laundry room adds convenience, while the open layout is perfect for everyday living and entertaining. Outside, take in the peaceful views from the large front porch, fish in the tranquil pond, or explore your private retreat with approximately 3 acres of cleared land and 3 large storage buildings ready for your tools, hobbies, or equipment. Located just 5 minutes from the Greenwood County boat ramp with access to Lake Greenwood and the Saluda River, and approximately 15 minutes to vibrant downtown Greenwood: home to shopping, dining, arts and culture, specialty boutiques, and local events. The area also features golf courses, Lander University, Piedmont Technical College, and the Greenwood County Airport. This one-of-a-kind property offers the freedom of country living with all the modern comforts. Don't miss your chance to call it home!






































