5314 Midway Road
$575,000
Property Information
| Price $575,000 | MLS # 20291146 | Lot Size Acres | ||
| Bedrooms 5 | Bath (Full / Half) 3 / 1 | Square Footage | ||
| Age | Subd. | Garage Capacity 2 |
Listing Company: HQ Real Estate, LLC
Listing Agent: Kristy Yates
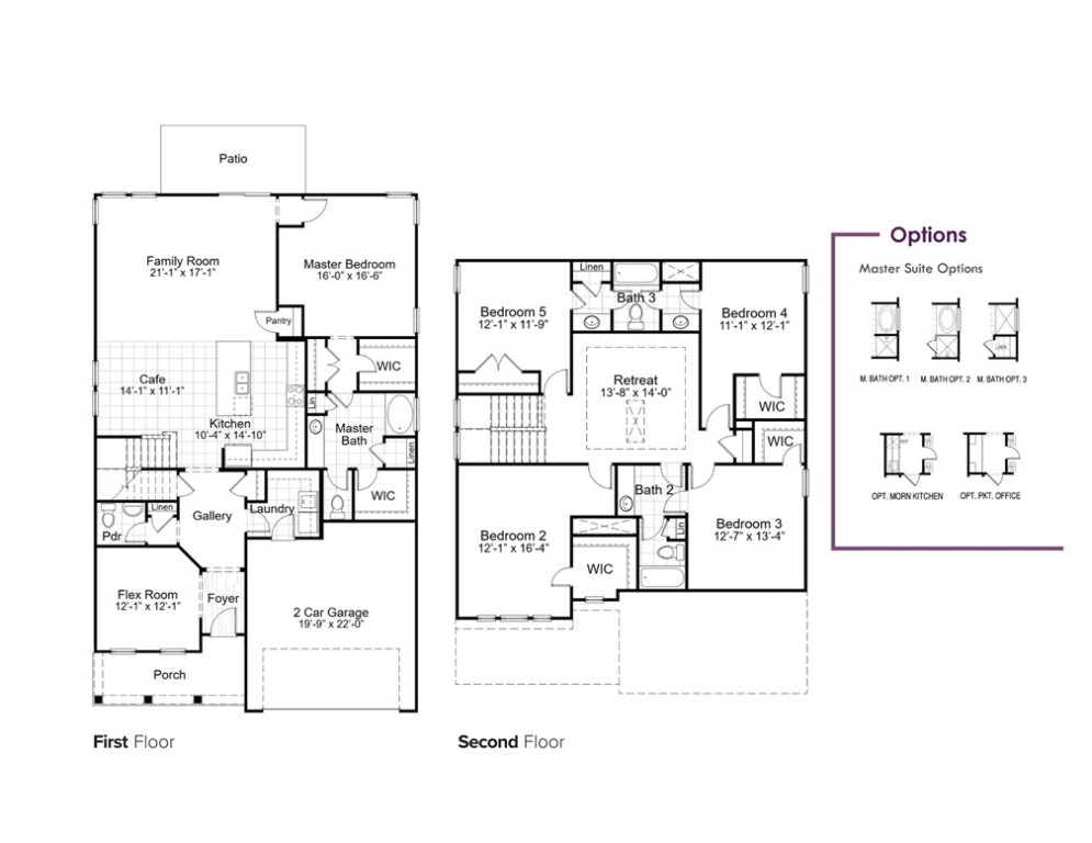
LOCATION, NO HOA, AND OVER HALF ACRE LOT, with room to add a pool in the back yard! Located in a very desirable area with no HOA just 10 minutes from downtown Anderson and only 20 minutes to downtown Greenville, this is one you don't want to miss! This thoughtfully design, open concept home is perfect for entertaining, with a gourmet style kitchen, oversized kitchen island, and quartz countertops to provide a sleep and functional workspace for entertaining family and friends. The primary suite is on the main level and includes dual vanities, a large walk in shower, and a large walk in closet, creating a private retreat. The main floor also features a flex room that can can be used as an office as well as a powder room. Upstairs, you will find four additional bedrooms, 2 full bathrooms, and a versatile loft space, offering plenty of room for family or guests. Two of the upstairs bedrooms are joined with a convenient jack and jill bathroom, while another has its own en suite complete and large walk in closet. With it's modern amenities and timeless farmhouse appeal, this home is a must see for anyone seeking a balance of style and functionality. Schedule your showing today! Love this home and want to build in a different location, specifically designed for you or your client? We own several lots in the upstate that we can build on OR we can build on a lot you already own!





























