123 Osprey Landing
$415,000
Property Information
| Price $415,000 | MLS # 20288049 | Lot Size Acres | ||
| Bedrooms 3 | Bath (Full / Half) 2 / 1 | Square Footage | ||
| Age | Subd. Eagle Creek | Garage Capacity 2 |
Listing Company: HQ Real Estate, LLC
Listing Agent: Tommy Hendricks
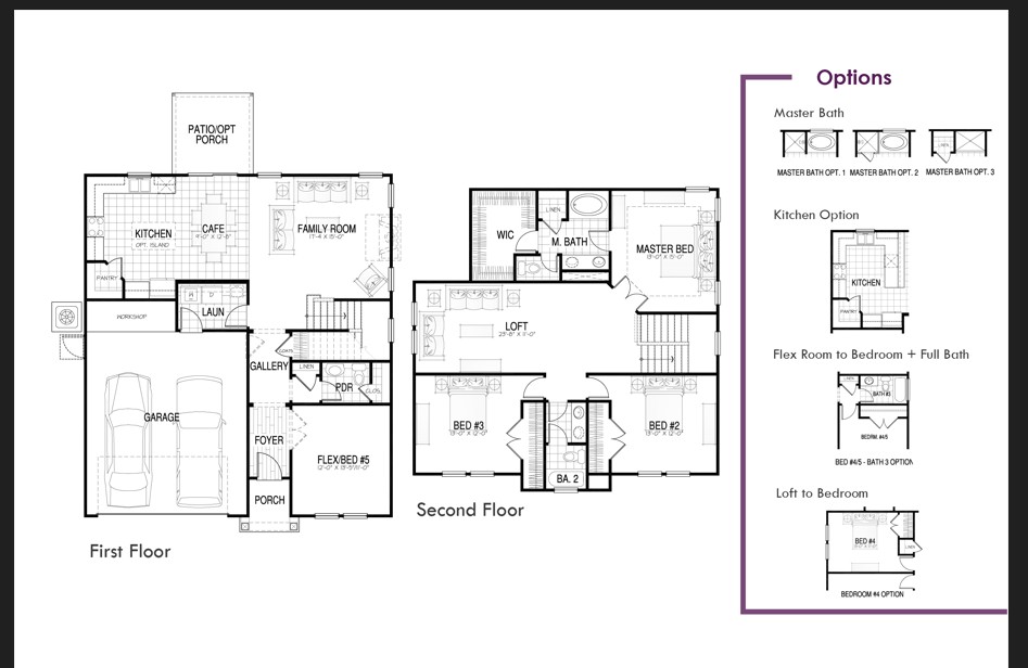
The Callaham floor plan offers approximately 2298 square feet with an open first floor designed for everyday living and entertaining. The kitchen, living room, and eat in area flow together to create a bright and functional space that works well for gatherings or daily routines. Upstairs features three bedrooms, two full bathrooms, and a large loft that can serve as a second living area, office, or flex space. The kitchen includes quartz countertops and Samsung appliances, including a gas oven and microwave, with plenty of room for cooking and hosting. The main living and dining areas feel open and inviting with good natural light throughout. Additional features include insulated garage doors, an eight foot glass front door, farmhouse style trim, arches, stone accents, a tankless water heater, and energy efficient construction with the ZIP System. The gas fireplace adds comfort and convenience, and the wood staircase with wooden spindles provides a classic touch. The home sits in an elevated position with a view over the neighborhood. It may also present an opportunity for rental income. Located in the school district for Central Academy of the Arts, R C Edwards Middle School, and D W Daniel High School. The area offers convenient access to Clemson University, shopping, dining, and outdoor recreation at Lake Hartwell and Lake Keowee. Eagle Creek residents have access to amenities at Southern Wesleyan University, including a driving range, track, walking and biking trails, and a soccer field. Price reflects cash purchase or financing with the preferred lender.























