245 Guthrie Road

$760,000

Property Information

Property Details
Price $760,000 MLS # 20287635 Lot Size Acres
Bedrooms 4 Bath (Full / Half) 3 / 1 Square Footage
Age Subd. Garage Capacity 3

Listing Company: HQ Real Estate, LLC
Listing Agent: Kristy Yates

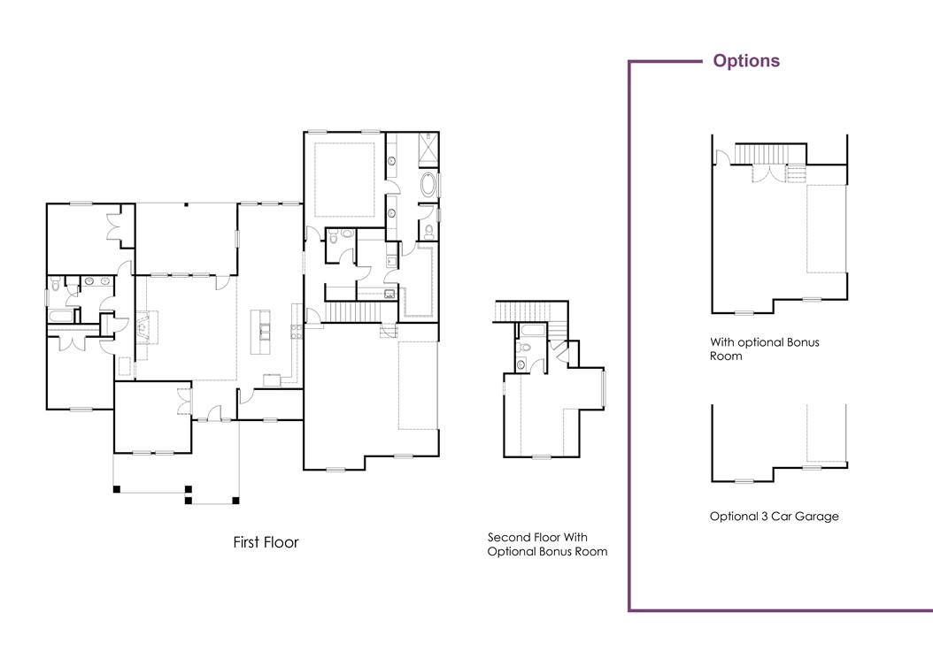
NEW Craftsman style home on OVER 5 ACRES, No HOA, but still only 20 minutes from Downtown Anderson...Could a location get any better than this? Your dream home is waiting for you, it will be ready in September! The CLAIRE floorplan by Hunter Quinn Homes is a stunning craftsman style home that is a favorite for everyone. It has a split floor plan that offers 4 bedrooms on the main floor, with a luxurious master suite complete with a freestanding tub, large walk in shower, his and her vanity and linen closets, and a large walk in closet. Vaulted ceilings in the family room, an open floor plan, fireplace, oversized kitchen island make the perfect atmosphere for entertaining. The farmhouse sink and gourmet appliances are every chef's delight for the kitchen. Upstairs, you will find a beautiful flex room complete with full bath, perfect for guests. Step out onto the patio and enjoy your favorite morning drink while experiencing breathtaking sunset views of the lake. With its modern amenities and timeless farmhouse appeal, this home is a must see. Photos are of a home with the same floor plan but different interior selections. Interior selections for this home are on the slides showing selections. Love this home and want to build in a different location, specifically designed for you? We have several lots in Anderson County and surrounding areas that we can build on OR we can build on a lot you already own!

Contact Michael to Learn More

To learn more about this property please give Michael a call at (864) 979-5357, or use the contact form below.