539 Ward Wilson Trail

$339,900

Property Information

Property Details
Price $339,900 MLS # 20287350 Lot Size Acres
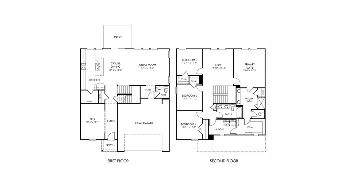
Bedrooms 4 Bath (Full / Half) 2 / 1 Square Footage
Age Subd. Chatham Forest Garage Capacity 2

Listing Company: MTH SC Realty, LLC
Listing Agent: Kelly Jo Hard

Brand new, energy-efficient home available NOW! Outfit the Dakota's main-level flex space as a home office and skip your commute. In the kitchen, the island overlooks the open living space. Upstairs, the loft separates the secondary bedrooms from the primary suite. Experience the ultimate in energy-efficiency living with a Meritage home in Chatham Forest. This master-planned community offers an array of amenities including a pool and cabana, dog park, and more. Chatham Forest features one- and two-story homes designed to fit your unique needs. Just minutes away from restaurants, local shopping and highly-rated schools, Chatham Forest offers the perfect blend of convenience and comfort. Each of our homes is built with innovative, energy-efficient features designed to help you enjoy more savings, better health, real comfort and peace of mind.

Contact Michael to Learn More

To learn more about this property please give Michael a call at (864) 979-5357, or use the contact form below.